Reloj de torre de Tudela
Página de inicio
Sobre nosotros
Historia
Posible regreso
Artículos
Planos y diseños
Galería de fotografías
Forma parte de la historia
Contacto
Entidades colaboradoras
Reloj de torre de Tudela
Página de inicio
Sobre nosotros
Historia
Posible regreso
Artículos
Planos y diseños
Galería de fotografías
Forma parte de la historia
Contacto
Entidades colaboradoras
Página de inicio
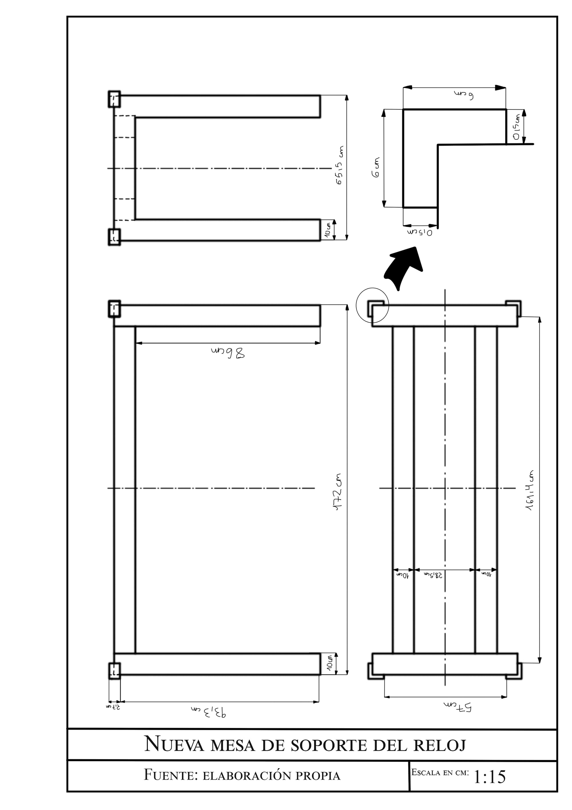
Planos y diseños
Planos mesa
Planos mesa
Ver la galería completa
ESTE SITIO FUE CONSTRUIDO USANDO
CREA TU PÁGINA WEB AHORA >>
Report Abuse